ID de la Propiedad : 2602
Venta, Apartamento,2 Dormitorios, 3 baños, Carrasco
Venta de hermoso apartamento de 2 dormitorios 3 baños en Carrasco Boating, para que vivas rodeado de paz y naturaleza, lejos del ruido y con la tranquilidad de los lagos a tu alrededor. Magníficas vistas al agua para que puedas relajarte y vivir como querés!
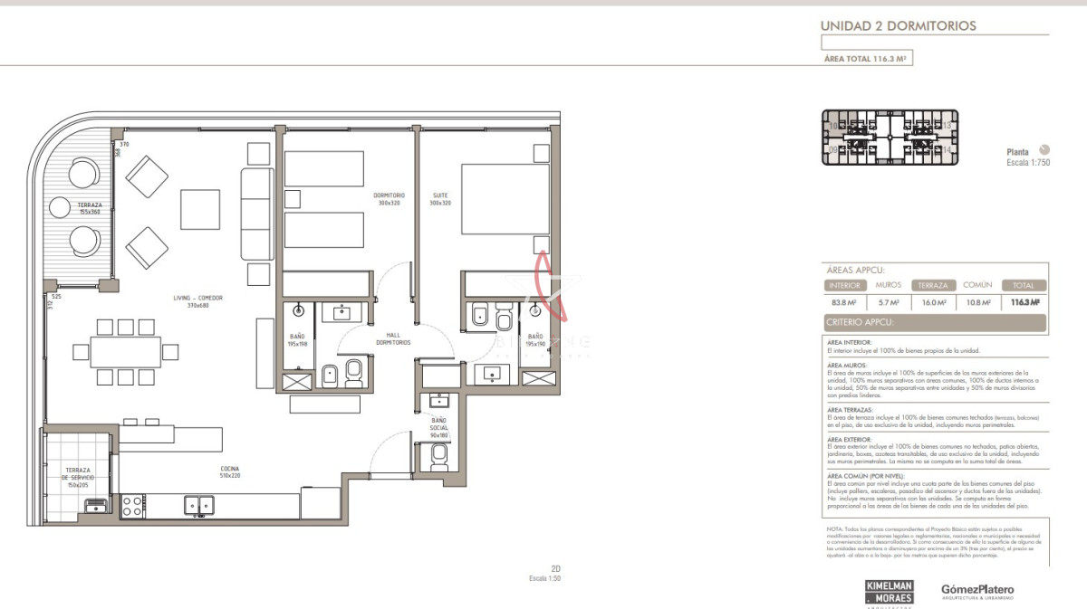
Amplio living y comedor, con ventanales de piso a techo que se integran con el entorno natural, cocina integrada, 2 dormitorios y 3 baños, uno de ellos en suite, losa radiante sectorizada.
Lejos del ruido, cerca de todo.
Amenities : Piscina climatizada interna y externa, Playa privada con mulle propio, Salón gourmet, Barbacoas con vista al lago Calcagno, Gimnasio de ultima generación, Sauna, Vestuarios, Salón de eventos, Juegos para niños y zonas exteriores para realizar ejercicio al aire libre.
Unidades de 1, 2 y 3 dormitorios, Villas de 4 y 3 dormitorios, todo con las mejores vistas a el lago Calcagno.
Gastos de Ocupación 6 %.
Garage Simple U$D 30.300.- No incluido en el precio de venta.
Fecha de entrega Marzo - Abril 2026.
Si es así como queres vivir, llamanos!!!
Fotos a modo de ejemplo del Showroom.