Características
Sup. Total:

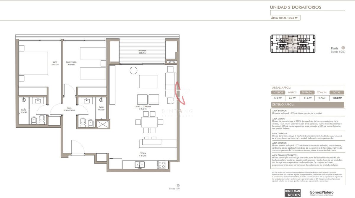
105 m2

Dormitorios:

2

Baños:

2

Frente al Mar:

No

Piscina:

Interior / Exterior

Garage:

Apartamento, 2 dormimorios, 2 baños, Carrasco, Montevideo, Venta
Venta de hermoso apartamento de 2 dormitorios, 2 baños en Carrasco Boating, para que vivas rodeado de paz y naturaleza, lejos del ruido y con la tranquilidad de los lagos a tu alrededor. Magníficas vistas al agua para que puedas relajarte y vivir como querés!

Amplio living y comedor, con ventanales de piso a techo que se integran con el entorno natural, cocina integrada, 2 dormitorios en suite + baño social, terraza lavadero, losa radiante sectorizada.

Lejos del ruido, cerca de todo.

Amenities : Piscina climatizada interna y externa, Playa privada con mulle propio, Salón gourmet, Barbacoas con vista al lago Calcagno, Gimnasio de ultima generación, Sauna, Vestuarios, Salón de eventos, Juegos para niños y zonas exteriores para realizar ejercicio al aire libre.



Unidades de 1, 2 y 3 dormitorios, Villas de 4 y 3 dormitorios, todo con las mejores vistas a los lagos de Carrasco.

Gastos de Ocupación 6 %.

Garage Simple U$D 30.300.- No incluido en el precio de venta.

Fecha de entrega Marzo- Abril 2026.

Si es así como queres vivir, llamanos!!!

Las Fotos son a modo de ejemplo dela unidad modelo.

2018 | Bintang Propiedades Bintang Propiedades | Desarrollado por SIERRA con tecnología de TERA CRM